Detached Property

66 Ellington Avenue , Hamilton

Details

Property ID
X12710350
Status
Sold (On market for 17 days)
Property Type
Detached
Style
Backsplit 5
Area
2000-2500 SqFt
Lot Size
50 X 100 Ft.
Parking Spaces
2
Garage Spaces
2
Taxes
$5,583 (2025)
Basement
Walk-Up, Separate Entrance, Partially Finished, Full
Air Conditioning
Central Air
Heating Type
Forced Air

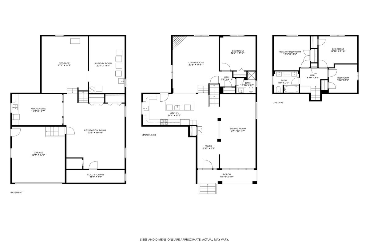
Description

Welcome to this beautifully renovated all-brick 5-level backsplit offering over 2,005+ sq. ft. of finished living space above grade, perfectly situated on a quiet, tree-lined street just steps from Ferris Park. This exceptional home blends timeless craftsmanship with modern upgrades and offers excellent in-law potential, featuring a separate entrance to the basement with a second kitchen already in place. The main level showcases a bright open-concept layout with hardwood maple flooring, crown moulding, and pot lights throughout. The stunning custom maple kitchen is a true showpiece, featuring solid soft-close cabinetry, dual sinks, a 9-ft quartz island, pot filler over the gas stove, under-cabinet lighting, glass backsplash and stainless steel appliances-striking the perfect balance of beauty and function. Just two steps down, the spacious family room welcomes you with a custom-built stone gas fireplace, ideal for gatherings or relaxing nights in. Conveniently located on this level is a 3-piece bath and a versatile rec room or fourth bedroom, perfect for guests, a home office, or playroom. The elegant wrought iron staircase connects all levels seamlessly. Upstairs, you'll find three generous bedrooms and a beautifully renovated 4-piece bath with custom cabinetry and premium finishes. The fourth and fifth levels are partially finished, ready to unlock approximately 700+ sq. ft. on the fourth level and an additional 600 sq. ft. on the fifth, providing substantial potential to expand living space. Outside, enjoy a fully fenced backyard with an irrigation system, a two-car garage, and a wide private driveway. Recent updates include a new roof, air conditioning, and furnace (2023). Located close to parks, schools, transit, and shopping, with QEW access in under five minutes, this move-in-ready Stoney Creek home perfectly combines modern comfort, space, and style. ...

Continue Reading Show Less

Amenities

Location of the Property

66 Ellington Avenue, Hamilton, ON L8E 3T6

Community Sold Statistics

Ave Sold Price

Ave Days On Market

Based on last 90 days transactions for Detached Properties in the Stoney Creek community.

RE/MAX REAL ESTATE CENTRE INC., BROKERAGE
(519) 623-6200

You like this property? Receive new, similar ones in your inbox.

We will also update you on other related information such as similar sold properties and market reports

Subscribe Now
Must be logged in to see the sold history
List Date Transaction List Price Sold/Leased Price DOM Status Transaction Date
$
per month
Principal
Down Payment
Balance at Term End

More About 66 Ellington Avenue

66 Ellington Avenue is a Residential Property located in the city of Hamilton. 66 Ellington Avenue has been listed For Sale at $929,900 since Jan 19 2026. This Detached Detached has 4 bedrooms, 2 bathrooms and is 2000-2500 sqft. Situated in Stoney Creek neighbourhood , with the nearest intersection being Hemlock & Ellington.

Listing Brokerage: RE/MAX REAL ESTATE CENTRE INC.

}