Detached Property

2377 Ott Road , Fort Erie

1 Bed
2 Bath
10 Parking
$999,900

Details

Property ID
X12657380
Status
For Sale (On market for 74 days)
Property Type
Detached
Style
2-Storey
Area
1500-2000 SqFt
Lot Size
806 X 2235 Ft.
Parking Spaces
10
Garage Spaces
3
Taxes
$6,114 (2025)
Basement
Walk-Up
Air Conditioning
Wall Unit(s)
Heating Type
Water

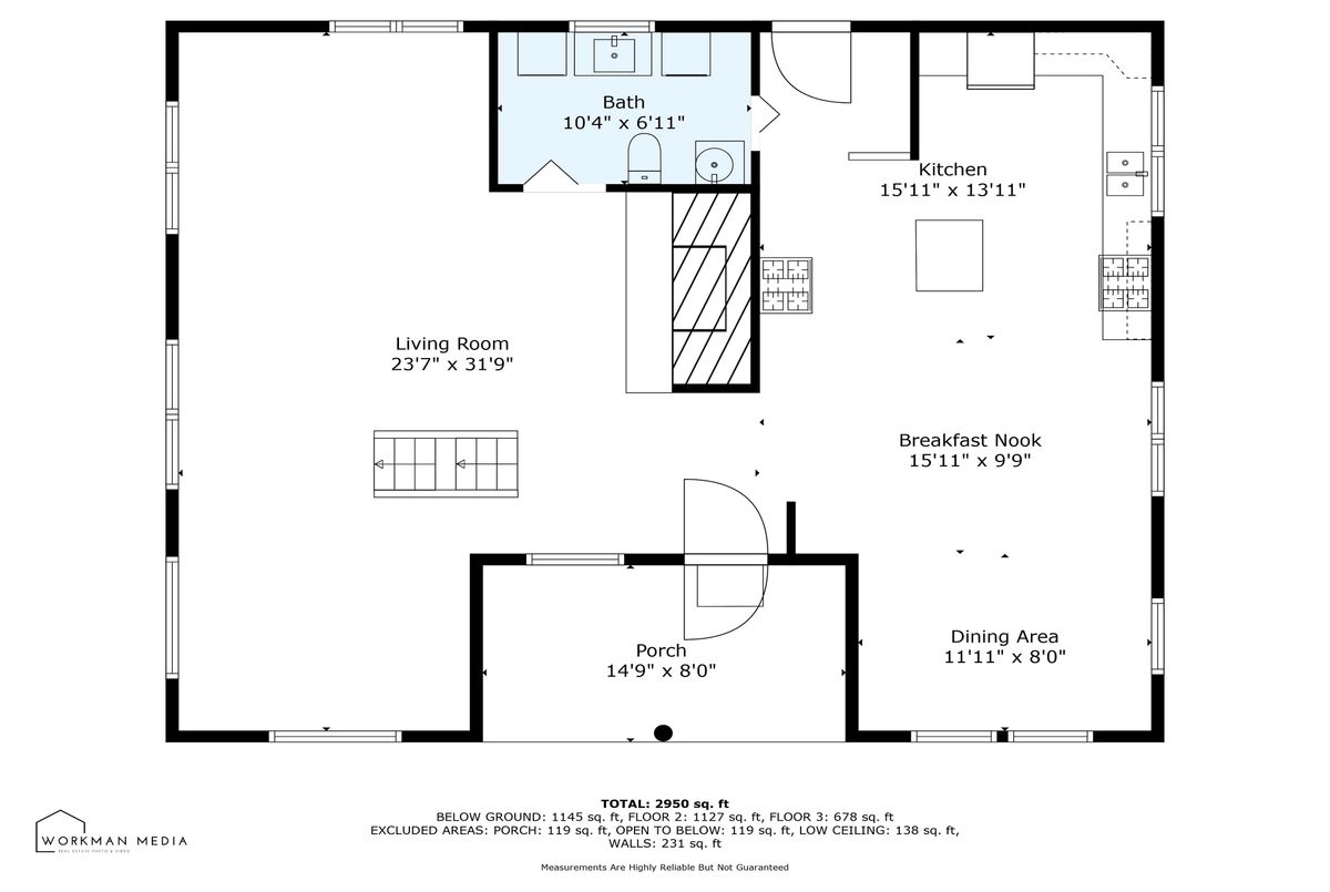
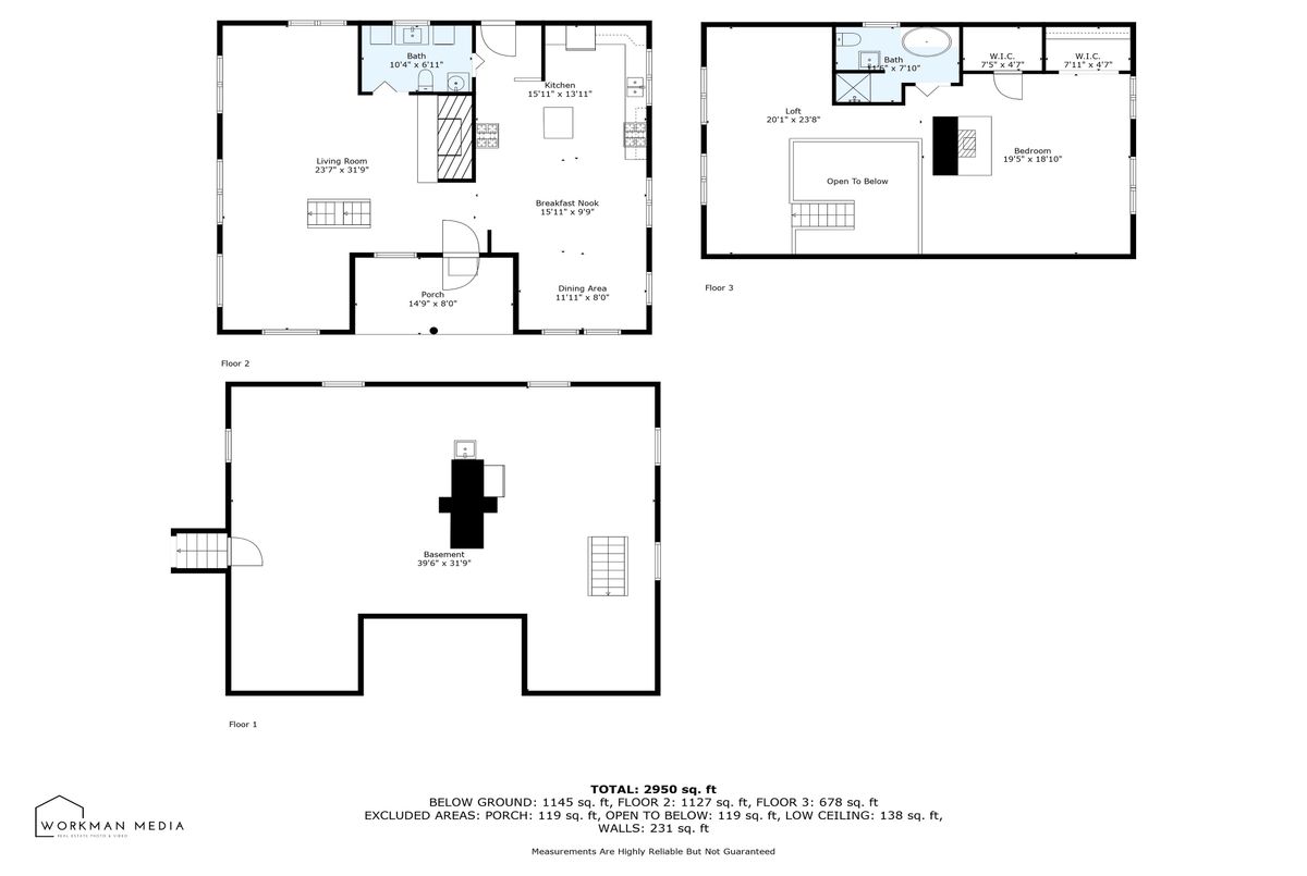
Description

Discover your own private paradise with this lovingly crafted custom log home, built in 1980 by the original owners. Nestled on just under 42 acres featuring a mix of lush forest, open land, and protected wetlands/conservation area (NPCA). this unique property offers peace, privacy, and endless potential. The home features a classic log design with soaring ceilings, rustic charm, and an unfinished basement ready for your vision. The current layout could easily be reconfigured into a 3-bedroom retreat, with one master bedroom on the main floor - making it perfect for families or those looking for a countryside escape. Outside, a detached 3-car garage provides ample storage or workshop space, while the expansive acreage offers trails, wildlife, and the kind of tranquility that's hard to find. Whether you're seeking a hobby farm, a recreational retreat, or simply a serene place to call home, this property delivers. A rare opportunity to own a custom-built log home with character and soul, surrounded by nature yet within reach of town amenities. Clients have a water collection and water reuse system in place and have used only rain water to run this home for many years. Buyer and Buyers Agent to verify all information with regards to the Conservation/wetlands, zoning, room sizes. ...

Continue Reading Show Less

Amenities

Location of the Property

2377 Ott Road, Fort Erie, ON L0S 1S0

Community Sold Statistics

Ave Sold Price

Ave Days On Market

Based on last 90 days transactions for Detached Properties in the 329 - Mulgrave community.

RE/MAX REAL ESTATE CENTRE INC., BROKERAGE
(519) 623-6200

You like this property? Receive new, similar ones in your inbox.

We will also update you on other related information such as similar sold properties and market reports

Subscribe Now
Must be logged in to see the sold history
List Date Transaction List Price Sold/Leased Price DOM Status Transaction Date
$
per month
Principal
Down Payment
Balance at Term End

More About 2377 Ott Road

2377 Ott Road is a Residential Property located in the city of Fort Erie. 2377 Ott Road has been listed For Sale at $999,900 since Jan 02 2026. This Detached Detached has 1 bedrooms, 2 bathrooms and is 1500-2000 sqft. Situated in 329 - Mulgrave neighbourhood , with the nearest intersection being Bowen Road/Ott Road.

Listing Brokerage: RE/MAX REAL ESTATE CENTRE INC.

}