Condo Townhouse Property

279 Sandowne Drive , Waterloo

Details

Property ID
X12370829
Status
Sold (On market for 12 days)
Property Type
Condo Townhouse
Style
2-Storey
Area
1200-1399 SqFt
Parking Spaces
1
Garage Spaces
1
Taxes
$2,609 (2024)
Basement
Finished
Pets Permitted
Yes-with Restrictions
Air Conditioning
Central Air
Heating Type
Forced Air

Description

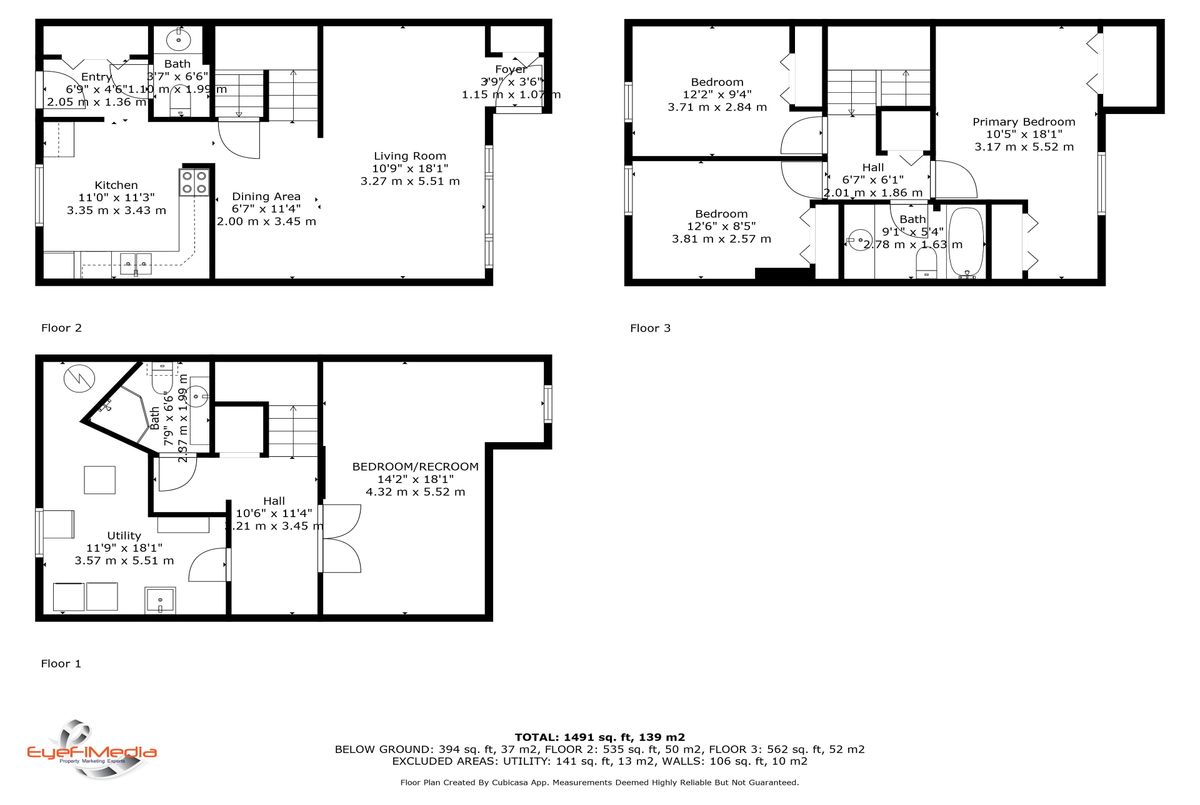
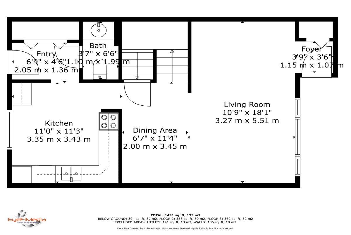
Welcome to this well-maintained 3 bedroom, 3 bathroom townhouse offering a functional layout and great features for comfortable living. The main floor conveniently consists of a 2-piece powder room, along with a bright living space and a kitchen equipped with newer stainless steel appliances. A second entrance leads to a private covered patioperfect for relaxing or entertaining outdoors. The large family room window is an additional bonus, rare to have with condo living. Upstairs youll find three generous bedrooms, including a primary bedroom with his-and-her closets, and a 4-piece bathroom. The finished basement provides excellent versatility with an additional full bathroom, office or bedroom space, making it ideal for working from home or hosting guests. Carport parking fits 2 vehicles. This home combines practicality with comfort and is ready for its next owner. ...

Continue Reading Show Less

Amenities

Location of the Property

279 Sandowne Drive, Waterloo, ON N2K 2C1

Community Sold Statistics

Ave Sold Price

Ave Days On Market

Based on last 90 days transactions for Condo Townhouse Properties in the community.

RE/MAX REAL ESTATE CENTRE INC., BROKERAGE
(519) 623-6200

You like this property? Receive new, similar ones in your inbox.

We will also update you on other related information such as similar sold properties and market reports

Subscribe Now
Must be logged in to see the sold history
List Date Transaction List Price Sold/Leased Price DOM Status Transaction Date
$
per month
Principal
Down Payment
Balance at Term End

More About 279 Sandowne Drive

279 Sandowne Drive is a Condo Property located in the city of Waterloo. 279 Sandowne Drive has been listed For Sale at $499,900 since Aug 29 2025. This Condo Townhouse Condo Townhouse has 3 bedrooms, 3 bathrooms and is 1200-1399 sqft. , with the nearest intersection being Dunvegan Dr.

Listing Brokerage: RE/MAX REAL ESTATE CENTRE INC.

}