Commercial Retail Property

16524 Hurontario Street , Caledon

Details

Property ID
W12647914
Status
For Sale
Property Type
Commercial Retail
Lot Size
187 X 221.29 Ft.
Parking Spaces
15
Taxes
$19,691 (2025)
Air Conditioning
Partial
Heating Type
Gas Forced Air Open

Description

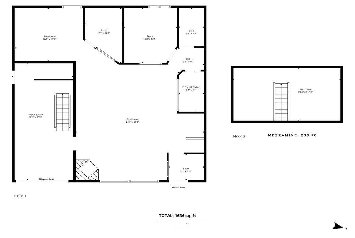
A Rare Opportunity To Acquire A Free-Standing 11,680 St, Ft. Commercial Building With 187 Feet Of Prime Frontage On Busy Highway 10, Ideally Located In Caledon, Between Brampton And Orangeville. The Property Features Two Separate Commercial Retail Units. The Smaller Unit Is 1,636 Sq. Ft. And Includes Offices, A Bathroom, A Large Shipping Area With A Truck-Level Door And Additional Mezzanine Space For Extra Storage. The Larger Unit, Approximately 6,161 Sq. Ft., Was Previously Used As A Parts And Accessories Retail Shop And Includes Offices, Bathrooms, Workshop Areas, Truck-Level Shipping Doors, And A Drive-In Door. Vacant Possession Will Be Provided On Closing. In Addition, The Larger Unit Has An Additional 3,883 Sq. Ft. Warehouse Area That Can Be Separated And Used Independently For Owner Storage. Situated In A High-Traffic Corridor Next To A Gas Station And Café, The Property Offers Excellent Visibility And Consistent Foot Traffic, With Ample On-Site Parking For Staff And Customers. The Versatile Layout Provides Flexibility To Accommodate Multiple Tenants Or Owner-Operators. Environmental Due Diligence Has Been Completed, With A Phase 2 Limited Environmental Assessment Available Upon Accepted Agreement. The Sale Includes Land And Building Only; Tenant Chattels, Belongings, And Equipment Are Excluded. This Estate Sale Is Being Offered In An AS-IS, WHERE-IS Condition. Buyers And Their Agents Are Responsible For Verifying Zoning, Taxes, And Measurements. This Property Offers Excellent Potential For Investors Or End-Users Seeking High-Visibility, Well-Located Commercial Space With 2 Commercial-Retail Units. ...

Continue Reading Show Less

Location of the Property

16524 Hurontario Street, Caledon, ON L0N 1C0

Sales Representative
Office:

You like this property? Receive new, similar ones in your inbox.

We will also update you on other related information such as similar sold properties and market reports

Subscribe Now

More About 16524 Hurontario Street

16524 Hurontario Street is a Commercial Property located in the city of Caledon. 16524 Hurontario Street has been listed For Sale at $2,999,000 since Dec 23 2025. This Commercial Retail Commercial Retail . Situated in Rural Caledon neighbourhood , with the nearest intersection being Hurontario St. (HWY 10) & The Grange Sideroad.

Listing Brokerage: RE/MAX REAL ESTATE CENTRE INC.

}